Interieur K.N.O.T.

 

Kinderopvang

Nieuw IKC

Onderwijs
Thuis

....

 

Interieur K.N.O.T. vertaalt jouw visie naar een passend interieurontwerp.
interieurontwerper met pedagogische achtergrond! 


W e r k w i j z e 

Inventarisatie

De opdracht start altijd met een inventarisatie gesprek. We stellen samen een plan van eisen op.

 

 

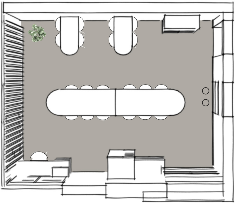
Plan van eisen 

| aantal zitplaatsen; 20 a 22

| één werkplek 

| spreiden van apparaten
  (koffieautomaat, koelkast,
  vaatwasser)

| huiselijk

| interieurstijl - Japandi

Ontwerpfase

Als het plan van eisen duidelijk is start de ontwerpfase. Er worden minstens twee ontwerpen gemaakt. 


Presentatie

Je ontvangt een brochure met daarin het moodboard, materialenplan, en de 2D & 3D tekeningen. Ook worden allerlei stalen getoond. 

 

Uitvoering

Het project wordt van A tot Z uitgevoerd door interieur K.N.O.T. Na oplevering ontvang je digitaal een aantal foto's.

 


R e c e n t e   p r o j e c t e n 


R e v i e w s